
新华专业老师请求与你对话
你愿意与学姐一起学IT吗
发布时间:2021-11-30 10:31:38 阅读量:
在长沙新华
你经常会看到一群学生拿着
卷尺、绘图板、激光测量仪
脚下生风似的从校外回来
到校后便一头扎进教室
再次看到他们的时候
他们手上的工具变成了一张张图纸

他们是谁呢?
他们就是环艺专业的小可爱们(傲娇)
那他们拿着工具去校外干什么呢?
当然是量房啊
我们学校可是项目实战
正儿八经的让学生们参与到项目中去

为检验同学们的学习成果(满足大家的好奇心)
不妨跟着墙姐的镜头去看看他们都做了些什么吧
量房中


深入现场,亲身体验
比灌输再多的理论知识都管用
实战派导师专业指导
手把手教学
让你学得会、学得好
真实力用真作品说话
墙姐这就上同学们的作品
让你们开开眼
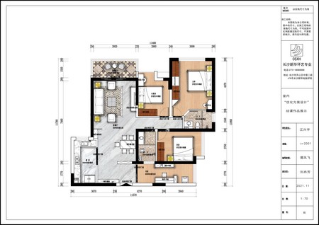
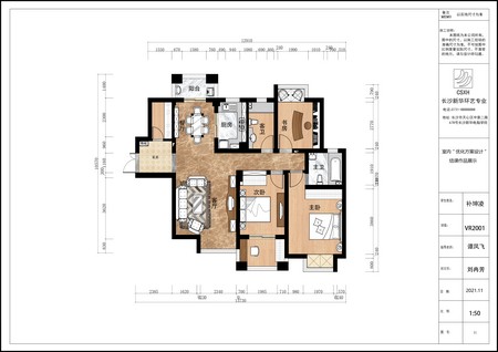
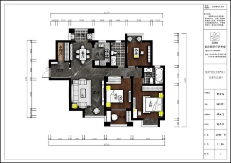
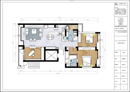
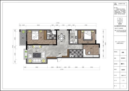
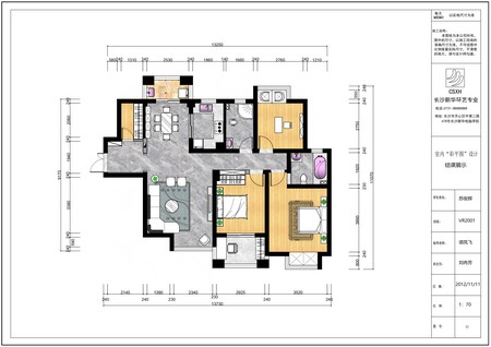
学生作品

欧阳轩—VR2001

江兴宇—VR2001

补坤凌—VR2001

曾有为—VR2001
郑赟—VR2001
曾龙—VR2001
苏俊辉—VR2001
导师有话说
谭凤飞:室内优化设计结课作品展,这次参加作品展班级是我校环艺专业的学生,该班在整个Autocad软件学习阶段非常认真。从前期的基础图形绘制困难,到平面图的设计合理,再到施工图的认真细化及后来设计彩平图的完美展现,让我在他们身上看到了“坚持不懈、持之以恒”。作为他们的老师,我希望他们在今后的学习中,能够继续保持并发扬优秀的学习作风,并且不断创新设计,做出更多更好的设计作品!
预约你的精彩未来
免费领取课程体验卡,最高可报销 200 元车费